Beacon College
Residence Hall Phase II
Leesburg, Florida
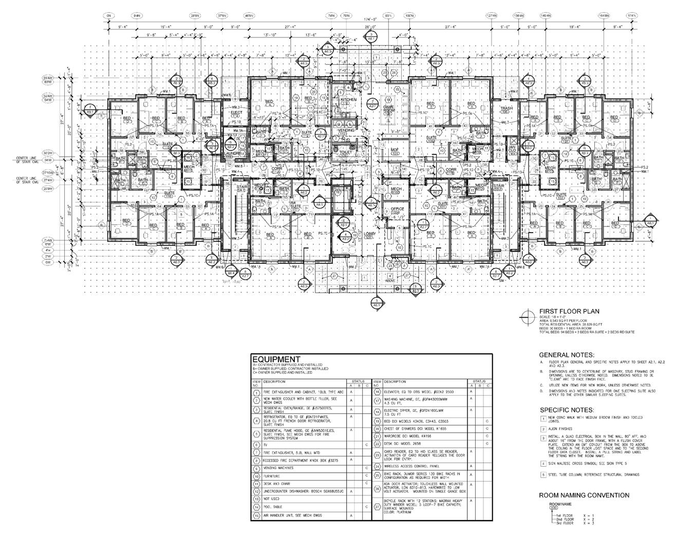
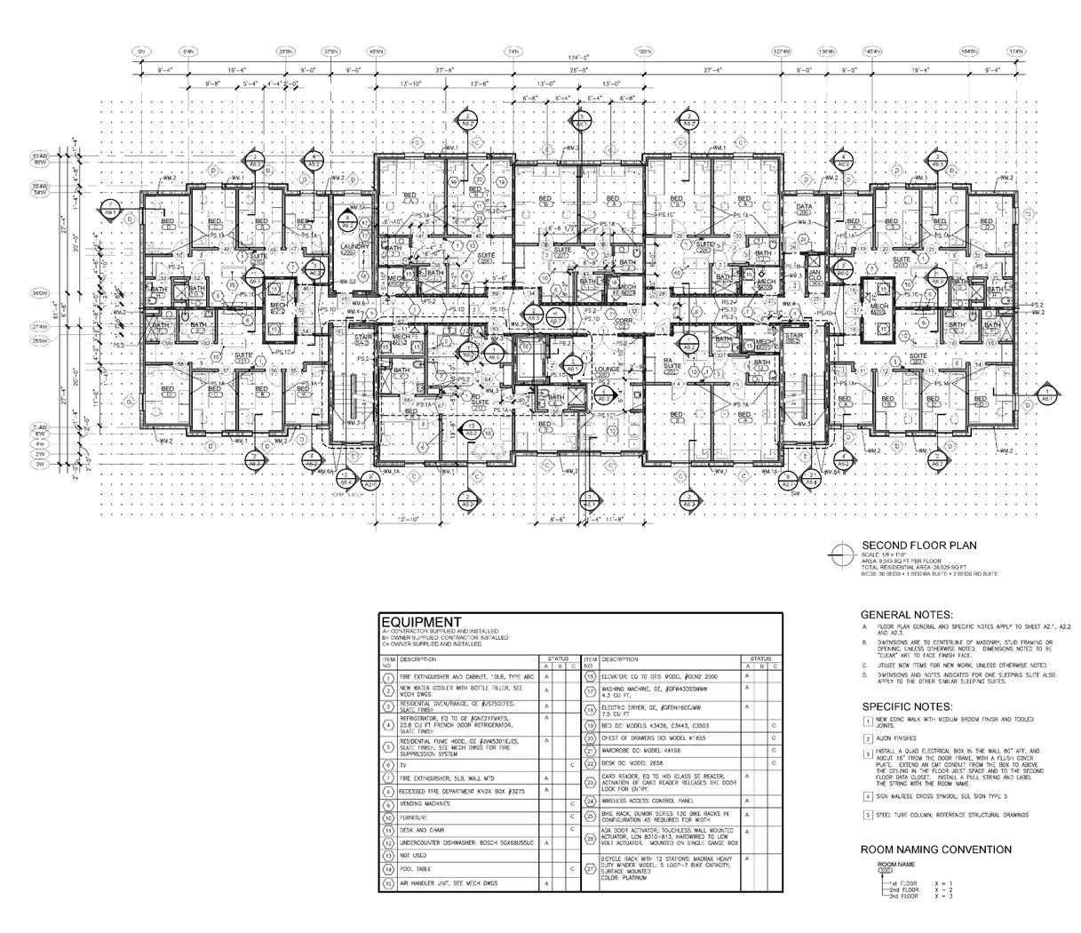
The first floor of the residence hall has a 16 to 20-person multi-purpose room that will serve as a gathering space for students. For both buildings, amenities such as a residential kitchen and recreation rooms on the first floor around the entrance lobby are designed to encourage engagement among residents. Lounge areas with exterior views on all floors serve as gathering spaces and also double as study areas for students. Laundry rooms are also available on all floors for the students to utilize.













